About 260 Xx Se 18th Place
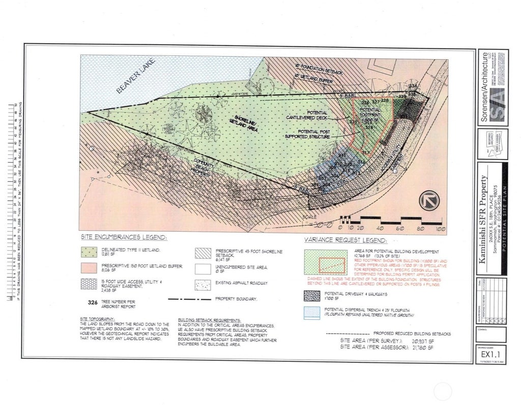
Beaver Lake Water Frontage subject to the Shoreline Management Act Variance #SVAR2022-00585. See attached possible Site Map. There are wetlands on site. Sewer in the street. Sewer Assessment. Yellow Flags along the road where the building site may be.
Features of 260 Xx Se 18th Place
| MLS® # | 2363865 |
|---|---|
| Price | $400,000 |
| Bathrooms | 0.00 |
| Acres | 0.50 |
| Type | Lot/Land |
| Sub-Type | Land |
| Status | Active |
Community Information
| Address | 260 Xx Se 18th Place |
|---|---|
| Area | 540 - East of Lake Sammamish |
| Subdivision | Beaver Lake |
| City | Sammamish |
| County | King |
| State | WA |
| Zip Code | 98075 |
Amenities
| Is Waterfront | Yes |
|---|
Interior
| Fireplace | No |
|---|
Exterior
| Lot Description | Dead End Street, Paved, Secluded |
|---|
School Information
| District | Issaquah |
|---|
Additional Information
| Days on Market | 187 |
|---|---|
| Cumulative Days on Market | 187 |
| Days on Website | 188 |
| Foreclosure | No |
| Short Sale | No |
| RE / Bank Owned | No |
Listing Details
| Office | John L. Scott, Inc. |
|---|
