5440 Kirkwood Place N, Seattle, WA

$825,000

Previous Next

0.11

Acres

About 5440 Kirkwood Place N

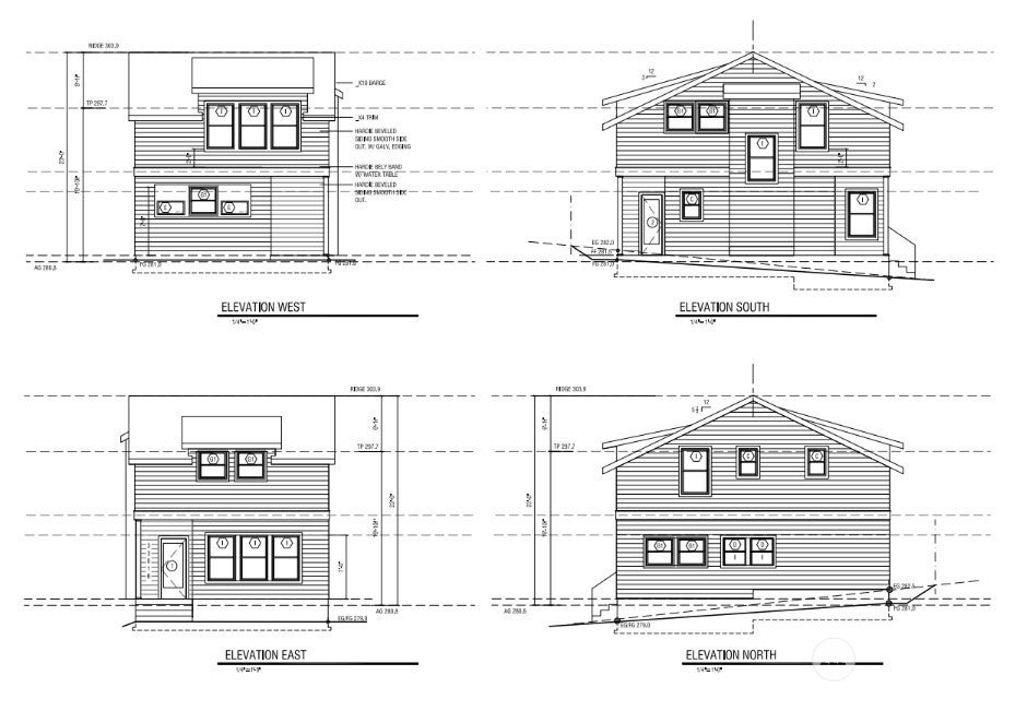
Great, flat 5000 SF Lot with NR3 zoning in the perpetually desirable Tangletown neighborhood of Greenlake. The lot includes a Permit Set for a 2,242SF Single Family Home with an 1,094SF ADU and a 1,222SF DADU. Permit with City of Seattle is good through End of 2024. Utilities and pedestrian access through easement access to Kirkwood Pl N. The neighborhood is a well-loved community with easy access to restaurants and coffee shops just around the corner, Greenlake, as well as quick access to I-5 and desirable schools. SFR: 2242SF + 433SF Garage |  4 Beds, 3.25 Baths ADU: 1094SF  | 2 Beds, 2.25 Baths DADU: 1222SF | DADU: 3 Beds, 2.25 Baths This one is ready to go-- or design and build your dream home!

Features of 5440 Kirkwood Place N

MLS® # 2304317
List Price $825,000
Sale Price $755,000
Bathrooms 0.00
Acres 0.11
Type Lot/Land
Sub-Type Land
Status Sold

Community Information

Address 5440 Kirkwood Place N
Area 705 - Ballard/Greenlake
Subdivision Wallingford
City Seattle
County King
State WA
Zip Code 98103

Amenities

Is Waterfront No

Interior

Fireplace No

Exterior

Lot Description Alley

School Information

District Seattle
Elementary Buyer To Verify
Middle Buyer To Verify
High Buyer To Verify

Additional Information

Days on Market 226
Cumulative Days on Market 226
Days on Website 250
Foreclosure No
Short Sale No
RE / Bank Owned No

Listing Map

Request a Showing

Provide a valid email address.
When would you like to view this property?